免費業主放盤
/
業主刪除樓盤
/
按揭計算
ENG
一手豪宅成交
平面圖
清水灣道887號
地區:
西貢
地址:
清水灣道887號銀線灣段
發展商:
入伙期:
地契年期:
2047 (尚餘22年)
會所設施:
周圍環境:
座/層/單位:
清水灣道887號 (-樓) (-室)
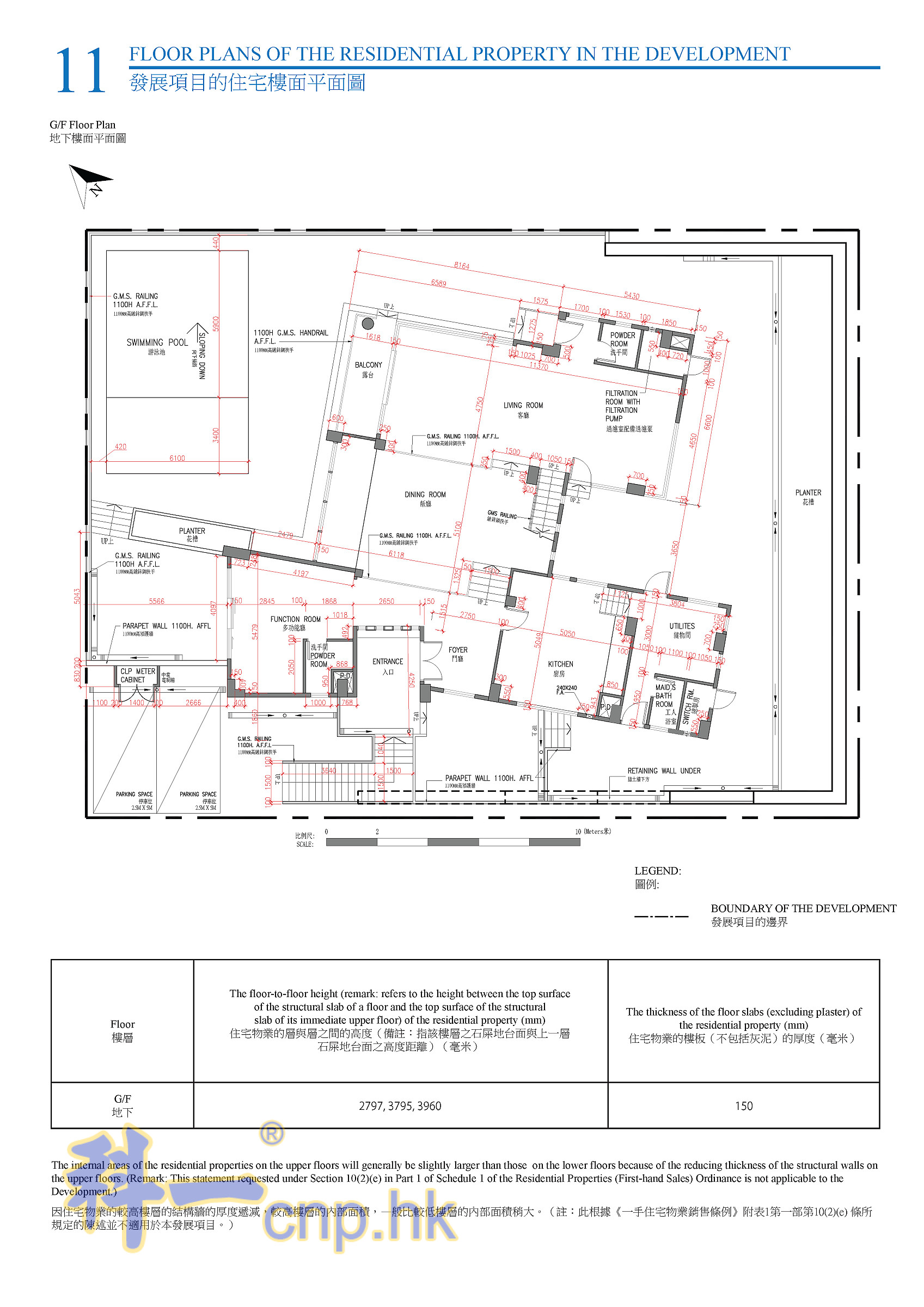
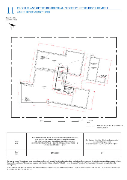
清水灣道887號 平面圖
地下
1樓
天台
返回
主頁
|
豪宅 租/售
|
豪宅成交
|
一手豪宅
|
豪宅市場消息
|
代理登入
|
刊登廣告
|
免費業主放盤
|
業主刪除樓盤
|
按揭計算
相關網站 :
科一物業資訊
|
宅谷地產資訊網
|
香港格價網 $ 樓盤
|
搵樓18
Copyright © 1995 - 2025 香港豪宅網 保留一切權利.
MLS.hk O/B Multiple Listing System Ltd.